Villa Nemea – Neubauwohnungen mit privatem Dachgarten und Domblick

Brixen
,
Südtirol
1/18
ORTSCHAFT
Brixen
Adresse
Cesare Battisti n. 26/A
TYP
Wohnung
Download
Plan (PDF)

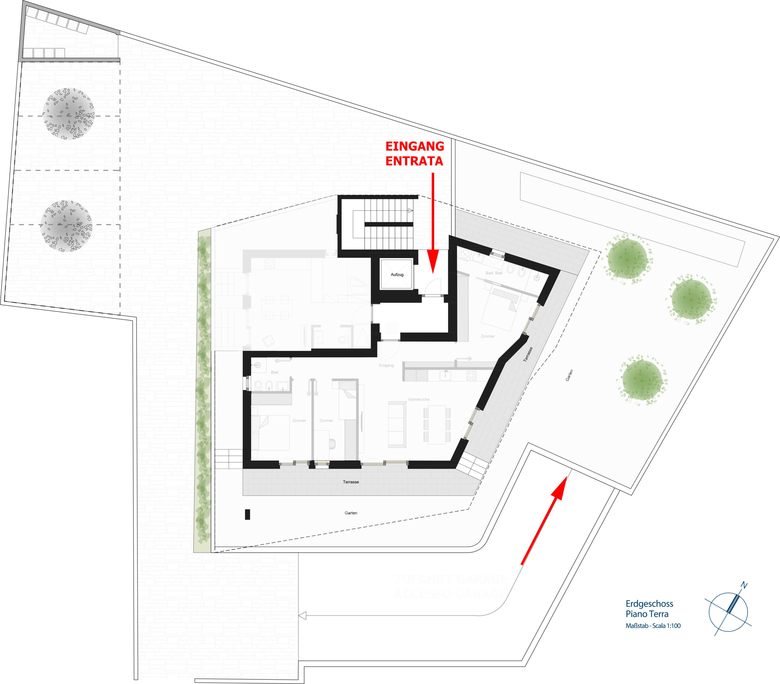
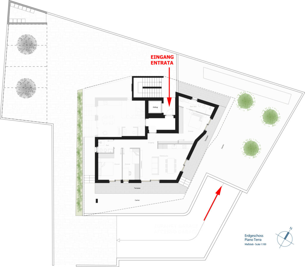
Villa Nemea –  3 Neubau Wohnungen

 

Brixen – C. Battisti Str.

4-Zimmerwohnung im EG + Terrasse – 149,00 m²

3-Zimmer-Mansarden-Whg + Balkon – 127,00 m²

3-Zimmer-Mansarden-Whg + Terrasse – 115,00 m² Klimahaus A Nature

 

Bressanone – Via C. Battisti

Quadrilocale al P.T. + terrazzo 149,00 m²

Trilocale mansardato + balcone – 127,00 m²

Trilocale mansardato + terrazzo – 115,00 m² Casaclima A Nature

Wir freuen uns auf Ihre Kontaktaufnahme!